發布時間:2009-07-14 瀏覽:次

|
閥體
|
閥桿
|
閥蓋
|
密封件
|
|
不銹鋼
|
不銹鋼
|
不銹鋼
|
PPL、氟橡膠、丁腈橡膠、四氟乙烯
|
|
閥門漏率
|
≤1.3×10-4Pa.L/S.
|
|
適用溫度
|
-30~+150℃
-30~+150℃(PPL密封) |
|
氣源壓力
|
0.4~0.6MPa
|
|
適用范圍
|
|
|
連接型式
|
使用壓力范圍(Pa)
|
|
活套法蘭(GB6070)
|
0.6×106~1.3×10-4
|
|
焊接法蘭(GB6070)
|
1.6×106~1.3×10-4
|
|
快卸法蘭(GB4982)
|
0.1×106~1.3×10-4
|
|
螺紋連接
|
1.6×106~1.3×10-4
|
|
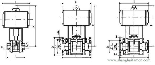
型號
|
DN
|
G
|
H
|
E
|
L
|
|
CNQZ-10(G)
|
10
|
1/4"
|
153
|
104
|
68
|
|
CNQZ-16(G)
|
16
|
1/2"
|
155
|
104
|
72
|
|
CNQZ-20(G)
|
20
|
3/4"
|
160
|
104
|
82
|
|
CNQZ-25(G)
|
25
|
1"
|
163
|
140
|
90
|
|
CNQZ-32(G)
|
32
|
1-1/4"
|
180
|
140
|
112
|
|
CNQZ-40(G)
|
40
|
1-1/2"
|
186
|
140
|
120
|
|
CNQZ-50(G)
|
50
|
2"
|
233
|
164
|
145
|
|
CNQZ-63(G)
|
63
|
2-1/2"
|
272
|
164
|
185
|
|
CNQZ-80(G)
|
80
|
3"
|
351
|
190
|
210
|
|
CNQZ-100(G)
|
100
|
4"
|
370
|
190
|
260
|
|
型號
|
DN
|
D
|
Do
|
H
|
E
|
L
|
n-φc
|
|
CNQZ-10(F)
|
10
|
55
|
40
|
153
|
105
|
84
|
4-φ6.6
|
|
CNQZ-16(F)
|
16
|
60
|
45
|
155
|
130
|
84
|
4-φ6.6
|
|
CNQZ-25(F)
|
25
|
70
|
55
|
163
|
165
|
114
|
4-φ6.6
|
|
CNQZ-32(F)
|
32
|
90
|
70
|
180
|
165
|
140
|
4-φ9
|
|
CNQZ-40(F)
|
40
|
100
|
80
|
186
|
190
|
160
|
4-φ9
|
|
CNQZ-50(F)
|
50
|
110
|
90
|
233
|
190
|
170
|
4-φ9
|
|
CNQZ-63(F)
|
63
|
130
|
110
|
272
|
250
|
195
|
4-φ9
|
|
CNQZ-80(F)
|
80
|
145
|
125
|
351
|
250
|
203
|
8-φ9
|
|
CNQZ-100(F)
|
100
|
165
|
145
|
370
|
280
|
280
|
8-φ9
|
|
型號
|
DN
|
D1
|
D
|
H
|
E
|
L
|
|
CNQZ-10(KF)
|
10
|
12.2
|
30
|
153
|
104
|
84
|
|
CNQZ-16(KF)
|
16
|
17.2
|
30
|
155
|
104
|
84
|
|
CNQZ-25(KF)
|
25
|
26.2
|
40
|
163
|
140
|
114
|
|
CNQZ-32(KF)
|
32
|
34.2
|
55
|
180
|
140
|
140
|
|
CNQZ-40(KF)
|
40
|
41.2
|
55
|
186
|
140
|
160
|
|
CNQZ-50(KF)
|
50
|
52.2
|
75
|
233
|
164
|
170
|
